reklama

Parczew. Jest nowy plan zagospodarowania dla południowo-wschodniej części miasta

Opublikowano: Aktualizacja: 
Autor: | Zdjęcie: Dokumentacja planistyczna

Parczew. Jest nowy plan zagospodarowania dla południowo-wschodniej części miasta - Zdjęcie główne

foto Dokumentacja planistyczna

reklama
Udostępnij na:
Facebook

Przeczytaj również:

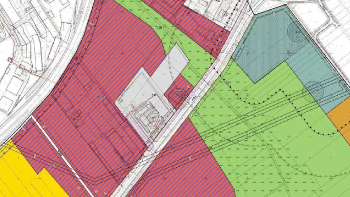
Informacje parczewskieNowy plan zagospodarowania przestrzennego dla południowo-wschodniej części Parczewa uchwaliła Rada Miejska.
reklama

- Obszar objęty planem zagospodarowania przestrzennego dla terenów zlokalizowanych w południowo-wschodniej części Parczewa, od zachodniej części graniczy z końcem obrębu geodezyjnego Parczew Miasto, od północnej części z terenem kolejowym ulicą Składnicową (po drugiej stronie torów ujęte są tylko trzy działki 2485/13, 2485/12 i 2485/14), od strony wschodniej ograniczony jest fragmentem ulicy Kolejowej i Al. Jana Pawła II, ul. Zbożową, a od strony południowej ulicą Laskowską - tłumaczy Magdalena Izdebska, podinspektor ds. gospodarki nieruchomościami i planowania przestrzennego.

Obszar jest częściowo zainwestowany i większość funkcji również pokrywa się z obowiązującym planem (...)

Więcej przeczytasz w papierowym wydaniu "Wspólnoty Parczewskiej", które ukaże się jutro. 

reklama

reklama
reklama
Udostępnij na:
Facebook
wróć na stronę główną

ZALOGUJ SIĘ

Twoje komentarze będą wyróżnione oraz uzyskasz dostęp do materiałów PREMIUM

e-mail
hasło

Zapomniałeś hasła? ODZYSKAJ JE

reklama
Komentarze (0)

Wysyłając komentarz akceptujesz regulamin serwisu. Zgodnie z art. 24 ust. 1 pkt 3 i 4 ustawy o ochronie danych osobowych, podanie danych jest dobrowolne, Użytkownikowi przysługuje prawo dostępu do treści swoich danych i ich poprawiania. Jak to zrobić dowiesz się w zakładce polityka prywatności.

Wczytywanie komentarzy
reklama
reklama
logo